武汉亿优网架钢结构加工厂家
联系
在线留言
人才招募
案例
武汉网架
武汉钢结构
武汉管桁架
武汉其它案例
新闻
公司动态
行业资讯
常见问题
网架
武汉网架设计
武汉网架制作
武汉网架配件
武汉网架安装
关于
企业文化
公司优势
公司资质
工厂考察
首页
X
网架设计
— — wangjiasheji — —
武汉网架厂家
网架设计
网架制作
网架配件
网架安装
武汉网架首页
>
网架厂家
>>
网架设计
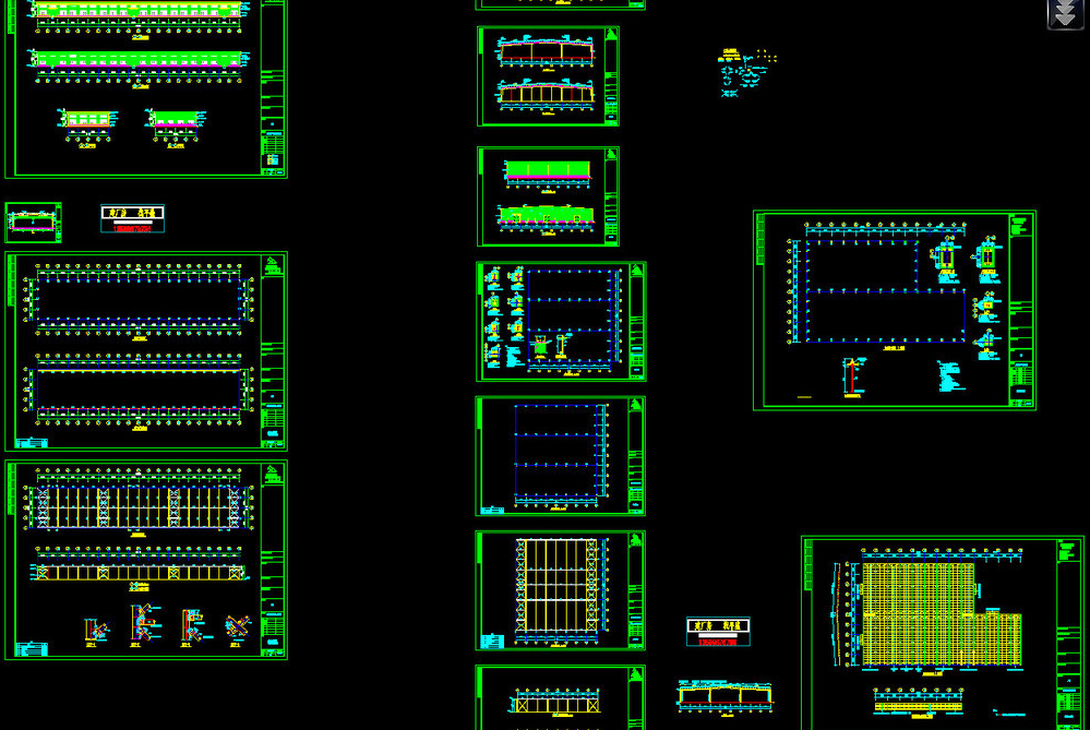
武汉钢结构厂房吊车梁
时间:2016-02-28 点击:40339
武汉网架钢结构加工安装选择亿优网架钢结构,加工快、周期短、质量优、服务好,电话:13905205681,QQ:20660890
【上一篇:
武汉钢结构厂房图纸
】
【下一篇:
武汉钢结构标准块
】
最新案例
CASE
武汉游泳馆网架
武汉
武汉体育馆网架
武汉
武汉大喇叭造型网架
武汉
武汉储煤棚网架
武汉
分站:
北京
上海
天津
重庆
广东
江苏
山东
网架厂家
浙江
河南
四川
湖北
河北
湖南
福建
网架加工
安徽
辽宁
陕西
内蒙古
江西
广西
黑龙江
钢结构厂家
吉林
云南
山西
贵州
新疆
甘肃
海南
钢结构加工
青海
西藏
南京
扬州
徐州网架
盐城
连云港
南通
苏州
常州
徐州
无锡
宿迁
广州
深圳
济南
日照
枣庄
青岛
杭州
郑州
洛阳
开封
武汉
石家庄
长沙
福州
合肥
宿州
阜阳
安庆
淮北
马鞍山
淮南
芜湖
成都
沈阳
西安
呼和浩特
南昌
南宁
哈尔滨
大庆
长春
昆明
太原
贵阳
遵义
乌鲁木齐
兰州
海口
三亚
西宁
拉萨
睢宁
丰县
沛县
新沂
邳州
北京
东城
西城
朝阳区
崇文
海淀
宣武
石景山
门头沟
丰台
房山
大兴
通州
顺义
平谷
昌平
怀柔
上海
黄浦
徐汇
长宁
静安
普陀
虹口
杨浦
闵行
宝山
嘉定
浦东
金山
松江
青浦
奉贤
崇明
天津
和平
河西
河东
红桥
南开
河北区
西青
津南
北辰
东丽
重庆
渝中
江北
南岸
九龙坡
沙坪坝
大渡口
北碚
渝北
巴南
广东
广州
韶关
深圳
珠海
汕头
佛山
江门
湛江
茂名
肇庆
惠州
梅州
汕尾
河源
阳江
清远
东莞
中山
潮州
揭阳
云浮
江苏
南京
泰州
镇江
扬州
盐城
淮安
连云港
南通
苏州
常州
徐州
无锡
宿迁
睢宁
丰县
沛县
新沂
邳州
兴化
东台
江阴
通州
宜兴
海门
溧阳
泰兴
如皋
昆山
启东
江都
丹阳
吴江
靖江
扬中
仪征
太仓
姜堰
高邮
金坛
句容
灌南
山东
济南
滨州
聊城
德州
临沂
日照
威海
泰安
济宁
潍坊
烟台
枣庄
淄博
青岛
菏泽
东营
乐陵
兖州
诸城
邹城
滕州
肥城
新泰
胶州
胶南
即墨
龙口
平度
莱西
莱芜
浙江
杭州
台州
舟山
衢州
金华
绍兴
湖州
嘉兴
温州
宁波
丽水
余姚
乐清
临海
温岭
永康
瑞安
慈溪
义乌
上虞
诸暨
海宁
桐乡
兰溪
龙泉
建德
富德
富阳
平湖
东阳
嵊州
奉化
临安
江山
河南
郑州
周口
信阳
商丘
南阳
三门峡
漯河
许昌
濮阳
焦作
新乡
鹤壁
安阳
平顶山
洛阳
开封
驻马店
济源
灵宝
偃师
邓州
登封
新郑
禹州
巩义
永城
长葛
义马
林州
项城
汝州
荥阳
卫辉
辉县
舞钢
新密
孟州
沁阳
郏县
四川
成都
泸州
广汉
江油
广元
峨眉山
广安
达州
万源
雅安
巴中
资阳
内江
宜宾
南充
都江堰
自贡
绵阳
眉山
遂宁
阆中
攀枝花
绵竹
华蓥
西昌
彭州
简阳
崇州
什邡
邛崃
双流县
德阳
乐山
湖北
武汉
随州
咸宁
黄冈
荆州
孝感
荆门
鄂州
襄阳
宜昌
十堰
黄石
恩施
枣阳
老河口
仙桃
天门
钟祥
潜江
麻城
洪湖
汉川
赤壁
松滋
丹江口
武穴
广水
石首
大冶
枝江
应城
宜城
当阳
安陆
宜都
利川
襄樊
神农架
河北
石家庄
衡水
廊坊
承德
张家口
保定
邢台
邯郸
秦皇岛
唐山
沧州
迁安
鹿泉
南宫
任丘
叶城
辛集
涿州
定州
晋州
霸州
黄骅
遵化
沙河
三河
冀州
武安
河间
深州
新乐
泊头
安国
双滦区
高碑店
雄安新区
湖南
长沙
娄底
怀化
永州
郴州
益阳
张家界
常德
岳阳
邵阳
衡阳
湘潭
株洲
湘西
浏阳
醴陵
湘乡
耒阳
沅江
涟源
常宁
吉首
冷水江
临湘
汨罗
武冈
韶山
福建
福州
厦门
莆田
三明
泉州
漳州
南平
龙岩
宁德
建瓯
武夷山
长乐
福清
晋江
南安
福安
龙海
邵武
石狮
福鼎
建阳
漳平
永安
安徽
合肥
池州
亳州
六安
巢湖
宿州
阜阳
滁州
黄山
安庆
铜陵
淮北
马鞍山
淮南
蚌埠
芜湖
宣城
濉溪
萧县
砀山
辽宁
沈阳
朝阳
铁岭
盘锦
辽阳
阜新
营口
锦州
丹东
本溪
抚顺
鞍山
大连
葫芦岛
调兵山
海城
北票
盖州
凤城
庄河
凌源
开原
兴城
新民
大石桥
东港
北宁
瓦房店
普兰店
凌海
灯塔
陕西
西安
安康
榆林
汉中
延安
渭南
咸阳
宝鸡
铜川
商洛
韩城
兴平
华阴
内蒙古
呼和浩特
锡林格勒盟
兴安盟
乌兰察布
巴彦淖尔
呼伦贝尔
鄂尔多斯
通辽
赤峰
乌海
包头
阿拉善盟
扎兰屯
二连浩特
霍林郭勒
阿尔山
乌兰浩特
根河
满洲里
额尔古纳
牙克石
临河
丰镇
江西
南昌
抚州
宜春
吉安
赣州
鹰潭
新余
九江
萍乡
景德镇
上饶
丰城
樟树
德兴
瑞金
井冈山
高安
乐平
南康
贵溪
瑞昌
东乡县
广丰县
信州区
三清山
广西
南宁
来宾
河池
贺州
百色
玉林
贵港
钦州
防城港
北海
梧州
桂林
柳州
崇左
东兴
桂平
北流
岑溪
合山
凭祥
宜州
黑龙江
哈尔滨
绥化
黑河
牡丹江
七台河
佳木斯
伊春
大庆
双鸭山
鹤岗
鸡西
齐齐哈尔
大兴安岭
富锦
虎林
密山
海林
铁力
北安
五大连池
阿城
尚志
五常
安达
绥芬河
双城
海伦
宁安
讷河
穆棱
同江
肇东
吉林
长春
吉林
四平
辽源
通化
白山
松原
白城
延边
集安
梅河口
双辽
延吉
九台
桦甸
榆树
蛟河
磐石
大安
德惠
洮南
龙井
珲春
公主岭
图们
舒兰
和龙
临江
敦化
云南
昆明
怒江
德宏
大理
西双版纳
文山
红河
楚雄
临沧
思茅
丽江
昭通
保山
玉溪
曲靖
迪庆
开远
个旧
景洪
安宁
宣威
山西
太原
临汾
忻州
运城
晋中
朔州
晋城
长治
阳泉
大同
吕梁
古交
高平
永济
孝义
侯马
霍州
介休
河津
汾阳
原平
潞城
贵州
贵阳
六盘水
遵义
安顺
铜仁
毕节
兴义
都匀
凯里
清镇
赤水
仁怀
福泉
新疆
乌鲁木齐
塔城
伊犁
和田
喀什
克孜勒苏柯尔克孜
阿克苏
巴音郭楞
博尔塔拉蒙古自治州
昌吉
哈密
吐鲁番
克拉玛依
阿勒泰
石河子
阜康
库尔勒
阿克苏
奎屯
米泉
甘肃
兰州
临夏
陇南
定西
庆阳
酒泉
平凉
张掖
武威
天水
白银
金昌
嘉峪关
甘南
玉门
合作
敦煌
海南
海口
三亚
万宁
文昌
儋州
琼海
东方
五指山
宁夏
银川
石嘴山
吴忠
固原
中卫
青铜峡
灵武
青海
西宁
海东
海北
黄海
海南
果洛
玉树
海西
格尔木
德令哈
西藏
拉萨
昌都
山南
日喀则
那曲
阿里
林芝
香港
澳门
台湾
境外
扫描加微信
扫描关注公众号
关于亿优
企业文化
公司优势
公司资质
工厂考察
网架厂家
武汉网架设计
武汉网架制作
武汉网架配件
武汉网架安装
新闻中心
公司动态
行业资讯
常见问题
案例展示
武汉网架
武汉钢结构
武汉管桁架
武汉其它案例
联系我们
在线留言
人才招募
徐州亿优网架钢结构工程有限公司
电话:13905205681、13912004320、0516-66628816
联系人:张经理
QQ:
20660890
邮箱:
eu@eoeu.cn
官网:eoeu.net
地址:徐州市铜山区大彭镇大彭工业园
TAGS:
Copyright@2003-2025 武汉网架钢结构工程有限公司
技术支持:亿优网架公司设计部
网站地图
苏ICP备19019550号-9
导航:
返回首页
关于亿优
网架厂家
新闻中心
案例展示
联系我们